Einzelteile
| Artikelnummer:
6009879 (627015)
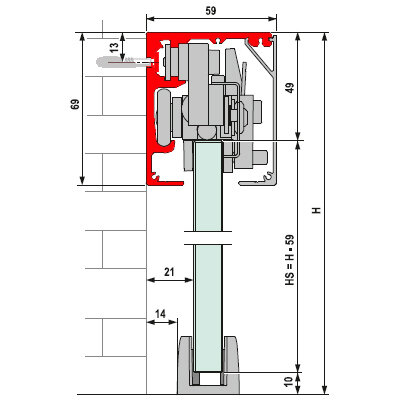
*** vitris Portavant G 120 Laufschiene für Wandmontage
Produktdetails ansehenVariante
Zubehör extra bestellen:
Blende für Decken-/Wand-/Fixteilmontage 627055
Endkappenset für Wand-/Deckenmontage 627282
Blende für Decken-/Wand-/Fixteilmontage 627055
Endkappenset für Wand-/Deckenmontage 627282