Einzelteile | Artikelnummer: 6009880 (627025)

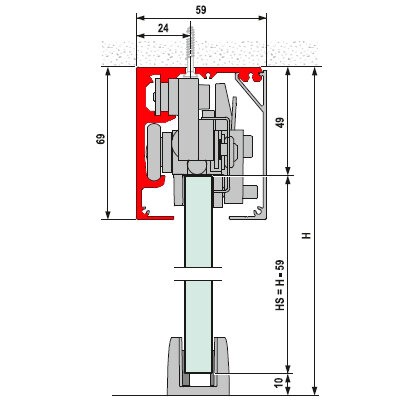
*** vitris Portavant G 120 Laufschiene für Deckenmontage

Produktdetails ansehen
Zubehör extra bestellen:
Blende für Decken-/Wand-/Fixteilmontage 627055
Endkappenset für Wand-/Deckenmontage 627282