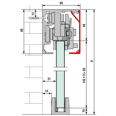
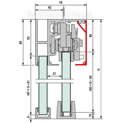
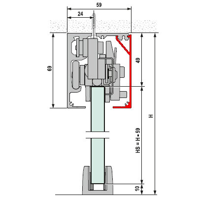
Einzelteile | Artikelnummer: 6009888 (627055)

*** vitris Portavant G 120 Blende für Decken-/Wand-/Fixteilmontage

Produktdetails ansehen