Einzelteile
| Artikelnummer:
6009884 (627030)
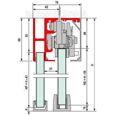
*** vitris Portavant G 120 Laufschiene für Deckenmontage mit Seitenteilaufnahme
Produktdetails ansehenZubehör extra bestellen:
Abdeckprofil für Nut in der Blende 617545
Blende für Decken-/Wand-/Fixteilmontage 627055
Endkappenset für Deckenmontage mit Fixteil 627284
Abdeckprofil für Nut in der Blende 617545
Blende für Decken-/Wand-/Fixteilmontage 627055
Endkappenset für Deckenmontage mit Fixteil 627284