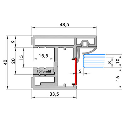
FZ 48 | Artikelnummer: 6009345 (608550)

*** FZ48 fri-line® Clipsprofil zu Zargenprofil 608548

Produktdetails ansehen